• Work
  • News
  • About
  • Contact
Resell & Nicca
  • Work
  • News
  • About
  • Contact

Villa V

Single Family House

2019
 

The house is situated in a lush and west facing area with views towards the outer parts of Oslofjorden, and on a site that is characterized by forest-like areas along its outer edge, many tall pine trees, and a gentle slope towards the northwest. Early on in the development of the project it was decided that the 29 pine trees would be preserved, that the organization of the house were to relate directly to the different levels on the plot, and that the forest-like areas were to be visible from key areas inside the building.

The building is given a simple basic shape that is inspired by the other houses in the area, with an elongated main volume and a longitudinal gabled roof. From this starting point, selected parts of the volume has been subtracted to allow the building to meet functional needs; The lower part of the east facade is withdrawn to provide roofing over and between the entrance doors, while the volume is reduced on the upper part of the west facade for the creation of a west-facing roof terrace with access from the garden and views over the nearby fjord.

The materiality of the building seeks to underline the concept; the basic shape is given a homogenous and precise surface enhancing its sculptural qualities (fiber cement panels), while the recessed parts (where people come closest to the facade) are held in a warmer material with more texture and visual depth (oak slats). The fiber cement panels are glued to underlying metal laths, giving the facades a simple and distinct appearance, and they are used in a number of different ways on the project exterior; as cladding on the roof, cladding on the garage door, window linings, railings, doors on technical cabinets, etc.

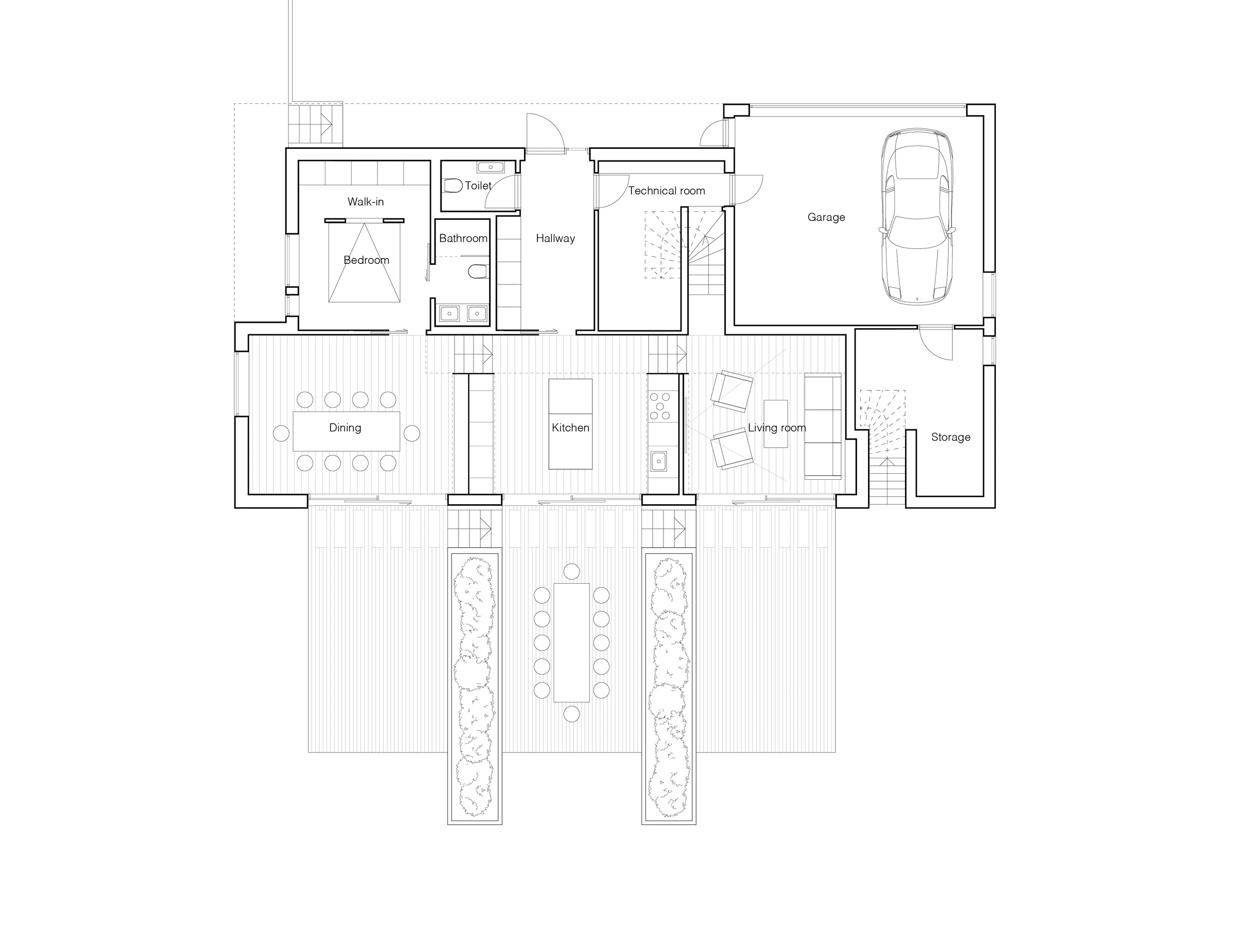
On the inside the building is characterized by a longitudinal main space containing the living room, the kitchen and the dining room. These functions are interlinked and visually connected, but sit on three different levels - with each level corresponding directly to the terrain outside. Semi-high walls, with integrated cabinets, kitchen accessories and storage space separate the levels, while glazed sliding doors on each level connects the interiors with the garden.

The complementary rooms of the house are organized in a linear system behind the main space, creating a spine towards the north-east facing courtyard. The spine spans both stories of the building, and also contains the main passageways for the technical installations (ventilation, water, electricity), and . On the upper floor the spine culminates in a flexible family room in the north-west - a space that has views in three directions and direct access to a large roof terrace.

A narrow void spans a large portion of the buildings length, providing visual contact between the different levels, while simultaneously bringing daylight from large windows down onto the veneer-clad back wall of the ground floor main space. The birch veneer is used on surfaces and integrated furnishings throughout the interior, and is complemented by colorful tones of blue and turquoise on selected walls and ceilings.

https://www.archdaily.com/928696/villa-void-house-resell-plus-nicca

https://www.opumo.com/magazine/villa-void-directing-natural-light/

https://www.re-thinkingthefuture.com/architecture/housing/3002-villa-void-by-resellnicca/

 

Resell+Nicca - Villa Void 1
Resell+Nicca - Villa Void 9
Resell+Nicca - Villa Void 2
Resell+Nicca - Villa Void 4
Resell+Nicca - Villa Void 8
Resell+Nicca - Villa Void 14
Resell+Nicca - Villa Void 3
Resell+Nicca - Villa Void 5
Resell+Nicca - Villa Void 6
Resell+Nicca - Villa Void 7
Resell+Nicca - Villa Void 15
Resell+Nicca - Villa Void 16
Resell+Nicca - Villa Void 10
Resell+Nicca - Villa Void 11
Resell+Nicca - Villa Void 12
Resell+Nicca - Villa Void 17
Resell+Nicca - Villa Void 18
Resell+Nicca - Villa Void 19
Resell+Nicca - Villa Void 20
Villa Void - detail.jpg